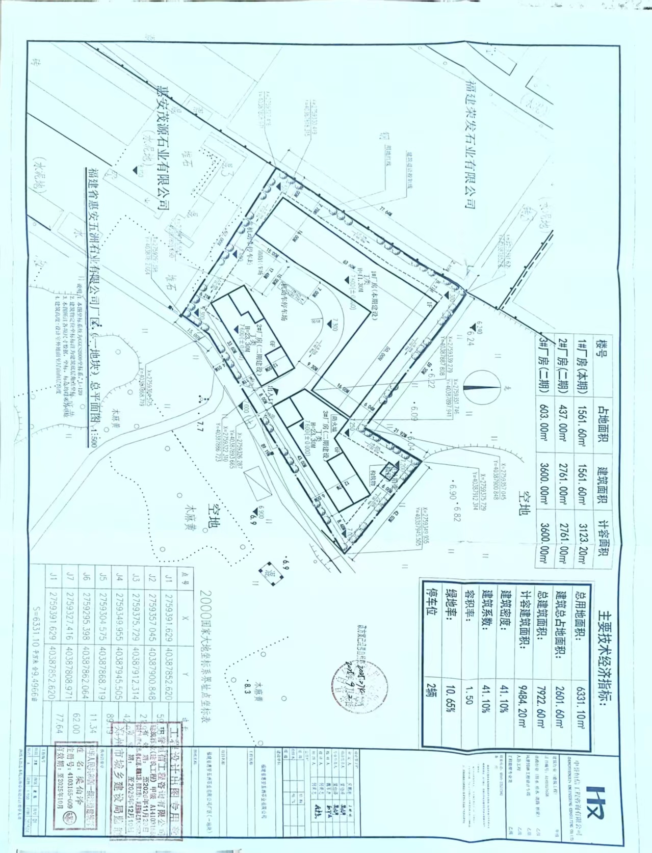
福建省惠安五洲石业有限公司厂房(一地块)建设工程规划许可证批前公示
时间:2025-10-11 16:44 浏览量:
 

扫一扫在手机上查看当前页面