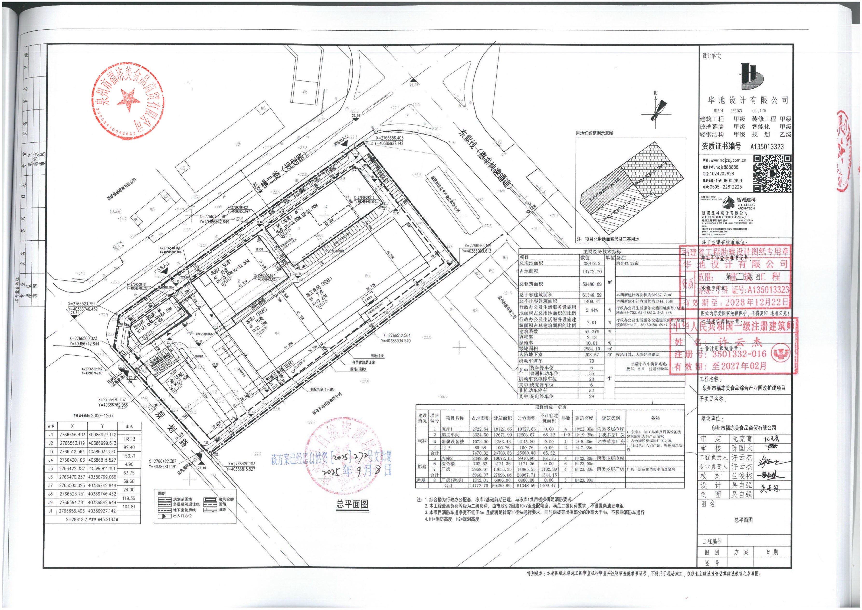
泉州市福冻美食品综合产业园改扩建项目建设工程规划许可证批前公示
时间:2025-10-14 16:16 浏览量:
 

扫一扫在手机上查看当前页面